
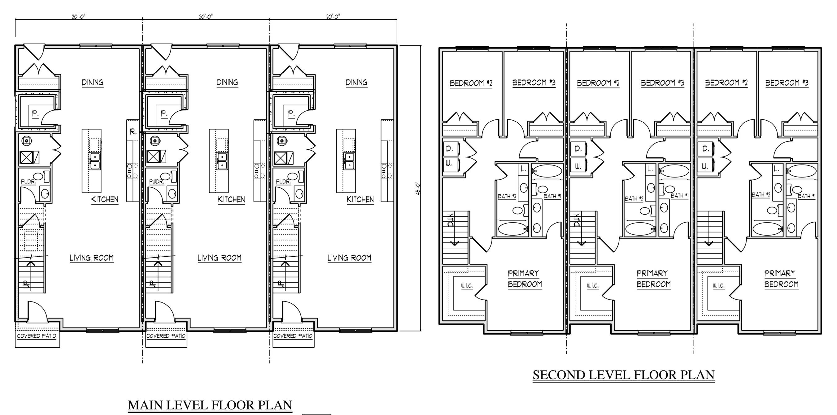
Welcome to the Tri-Plex’s at Village Park Flats, North Platte’s Newest Subdivision built by NuHaven Builders. Discover an incredible investment opportunity with this newly constructed Tri-Plex property, offering three spacious and modern units ready for immediate rental income. Each unit features 3 bedrooms, 3 bathrooms and have all been thoughtfully designed with contemporary finishes. Units also feature a dedicated washer & dryer space for added convenience.
Data services provided by IDX Broker
| Price: | 885,000 |
| Address: | 3901-3903-3905 W A Street |
| City: | NORTH PLATTE |
| County: | Lincoln |
| State: | Nebraska |
| Zip Code: | 69101 |
| MLS: | 26811 |
| Year Built: | 2025 |
| Square Feet: | 8,400 |
| Bedrooms: | 9 |
| Bathrooms: | 9 |
Please sign up for a Listing Manager account below to inquire about this listing