
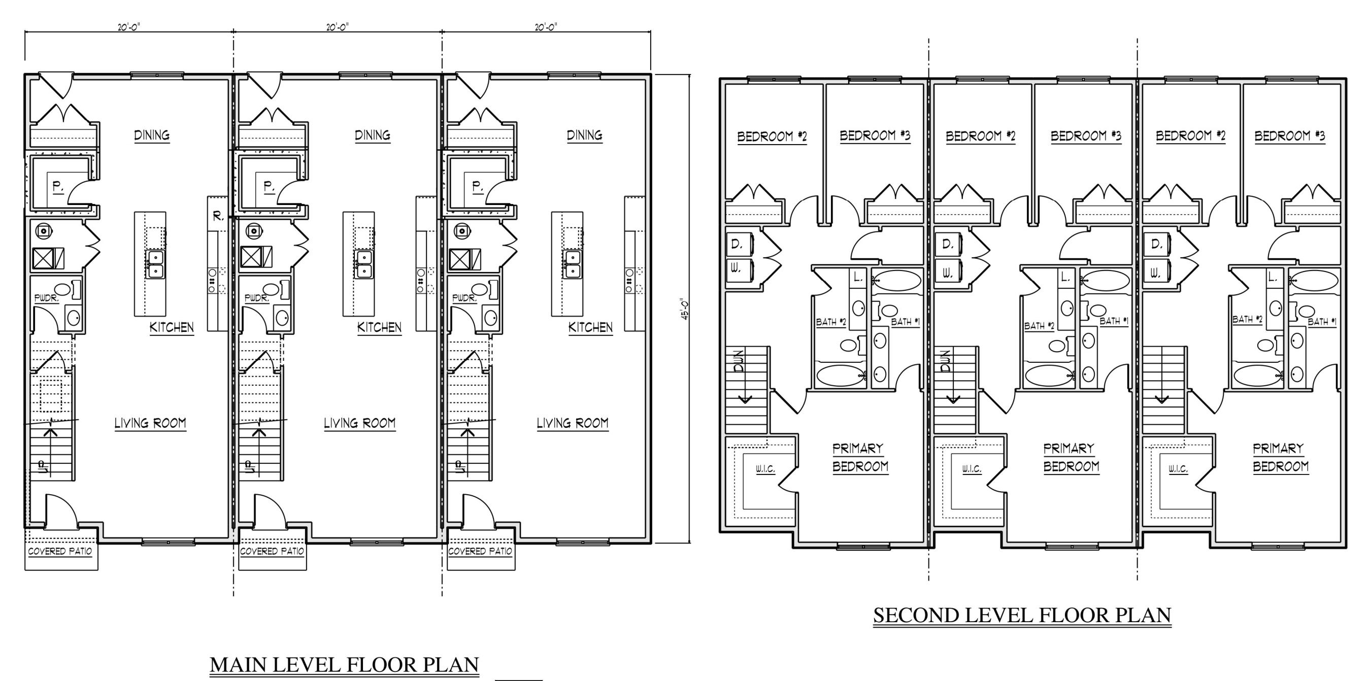
Welcome to the Tri-Plex’s at Village Park Flats, North Platte’s Newest Subdivision built by NuHaven Builders. Experience contemporary comfort and convenience in this brand-new open-concept tri-plex designed for effortless living. Each unit features a sleek, modern layout with spacious bedrooms, abundant natural light and high-quality finishes throughout. The maintenance-free exterior ensures a worry-free lifestyle, complemented by a homeowner’s association that takes care of lawn care and snow removal.
Data services provided by IDX Broker
| Price: | 310,000 |
| Address: | 3917 W A Street |
| City: | NORTH PLATTE |
| County: | Lincoln |
| State: | Nebraska |
| Zip Code: | 69101 |
| MLS: | 26820 |
| Year Built: | 2025 |
| Square Feet: | 1,746 |
| Bedrooms: | 3 |
| Bathrooms: | 3 |
Please sign up for a Listing Manager account below to inquire about this listing